viernes, 29 de noviembre de 2013

Viernes en casas!

Y zas! Por fin viernes! Este fin de semana nos lo pasamos en Tel Aviv en este casoplón:



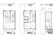
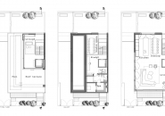
 Como es mas alta que ancha la escalera adquiere mucho protagonismo, y a mí me gusta mucho, aunque mucho más esas vistas!!



La cocina comedor es una pasada

 


...el salón...




El baño me ha flipado



y atención, que estas escaleras conducen a....

pitsou kedem tel aviv town house designboom

...la piscina de la terraza! IM-PRESIONANTE! pitsou kedem defines tel aviv town house 1 with rooftop pool 
 
La casa es del estudio pitsou kedem architects
Las fotos de amit geron
Vía designboom

4 comentarios:

  1. Yo lo de los ventanales, con su carpintería finita y sus árboles alrededor no lo puedo resistir. Y donde no hay ventanas hay piscina. Lo más.

    ResponderEliminar